Horizontaler Einbau
Abb. 1: Horizontaler Einbau Pumpenaggregat, Durchflussrichtung von unten nach oben
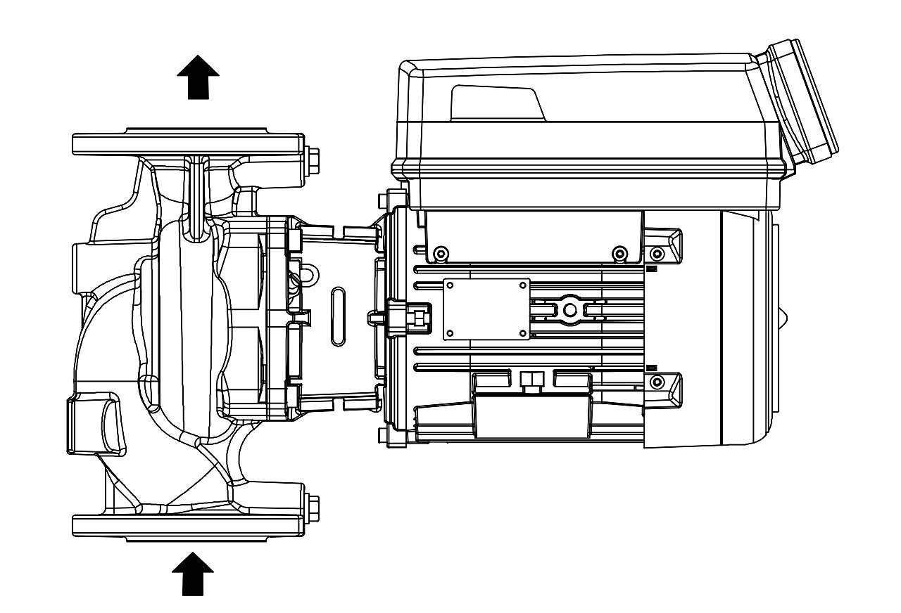
Abb. 2: Horizontaler Einbau, Durchflussrichtung von oben nach unten
Spiralgehäuse und/oder Einschubeinheit um 180° drehen, damit die Elektronik und das Bedienelement in der nach oben gerichteten Lage verbleiben und gut ablesbar sind.
Abb. 3: Horizontaler Einbau (z.B. unter der Decke)
Spiralgehäuse und/oder Einschubeinheit um 90° drehen, damit der Frequenzumrichter in der nach oben gerichteten Lage verbleibt.
Vertikaler Einbau
Abb. 4: Vertikaler Einbau/Befestigung ohne Pumpenfuß
In dieser Einbauposition muss die Gleitringdichtung über das Entlüftungsventil entlüftet werden.
Weiterführende Informationen, Links, etc.
Wie entlüftet man die Gleitringdichtung der EtaLine Pro?
Kommentare
0 Kommentare
Bitte melden Sie sich an, um einen Kommentar zu hinterlassen.